布袋除塵器
更新時間:2019-11-25 14:54:32點擊次數:3022次字號:T|T
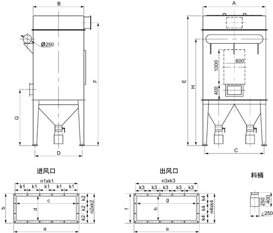
脈沖布袋除塵器具有風量處理大,除塵效率高,管理方便,是目前應用廣泛的一種除塵設備,它的結構主要可以分為上箱體、中箱體、下箱體、排灰系統和噴吹系統等。以下為您詳細講解一下脈沖布袋除塵器系統的結構
脈沖布袋除塵器具有風量處理大,除塵效率高,管理方便,是目前應用廣泛的一種除塵設備,它的結構主要可以分為上箱體、中箱體、下箱體、排灰系統和噴吹系統等。以下為您詳細講解一下脈沖布袋除塵器系統的結構
脈沖布袋除塵器的結構


1、上箱體:由上蓋板和靜氣出風口組成
一般小型脈沖布袋除塵器采用單層蓋板,大型脈沖布袋除塵器采用雙層蓋板,除塵器為負壓,將密封面緊貼,密封的效果較好。
2、中箱體:由花板、除塵濾袋、濾袋框架、文氏管
脈沖布袋除塵器的花板采用激光加工,保證了孔徑、孔位和平面度。除塵濾袋和花板配合的非常合理,保證了濾袋在除塵器的運行過程中,嚴密牢固不掉袋,并且在拆裝的時方便快捷。除塵框架采用碳鋼的材質,表面光滑沒有毛刺,采用了自流水線制作,所有的焊點和熔點都非常的牢固。除塵框架可以根據客戶的工況采取鍍鋅、噴塑和有機硅處理。
3、下箱體:由進風口、支腿、排灰裝置和檢查門組成;
脈沖布袋除塵器的排灰裝置可以根據粉塵容量的多少、重量、出口處物料的溫度、壓力的大小、粘性、腐蝕性等技術參數進行正確的選擇,一般常用的幾種排灰裝置:
1)插板閥 裝在脈沖除塵器灰斗下部作為定期卸灰用,可以單獨使用,也可以和其它卸灰閥配合使用,可以做成手動插板閥、氣動插板閥、電動插板閥。
2)轉向閥(三通卸料閥) 需要兩路交替卸料時,采用此卸料閥,用此來代替手動可旋溜管,對防塵有好處。
3)單層翻板閥 通常用作兩種卸料器的中間鎖氣閥,一般不單獨使用,我公司生產的翻板閥在轉軸處采用了新密封材料,可以有效阻止粉塵的進入。
4)雙層翻板閥 作為除塵器及風送卸料器卸料鎖氣用。間歇卸料,間歇時間可由配重來調節。因其價格便宜、易維護、使用壽命長,得到很好的推廣使用。
5)星型卸料器 作為料斗或除塵器、卸料器的卸料鎖氣用。卸料量穩定,動作可靠,自動化程度高,氣密性較好。
6)螺旋輸送機 用于料斗或脈沖布袋除塵器下部灰斗定期或連續卸料、出灰用。螺旋內應有一定的灰封,否則要和其他鎖氣器配合使用。
4、噴吹系統:由控制儀、控制閥、電磁脈沖閥、噴吹管、氣包和防護裝制組成;
1)控制儀
控制儀是脈沖布袋除塵器的重要的控制設備,客戶可以調整它的脈沖周期和脈沖寬度,保證除塵器的正常運行,控制儀的質量的好壞關系到除塵器清灰的效果。
脈沖布袋除塵器常用的控制儀為WMK型無觸點脈沖控制儀、QMY型氣動脈沖控制儀和三軸式機械脈沖控制儀。清灰控制有手動和自動兩種方式,可相互轉換。自動控制采用壓差(定阻)和定時及手動清灰三種控制方式,可相互轉換。壓差檢測點分別設置在布袋除塵器的進出口總管處,當達到設定的壓差值時,布袋除塵器各室按設定的順序依次進行清灰。
這些脈沖控制儀都由人工給定脈沖周期,定時噴吹,稱為定時控制。為避免噴吹次數過多,減少壓縮空氣、脈中閥膜片、除塵布袋等不必要的損傷,可采用自動調節清灰制度的定阻清灰控制,以改善和提高脈沖布袋除塵器的技術經濟性能。脈沖布袋除塵器可以采用控制柜或PLC控制柜,可通過觸摸顯示屏操作實時監測系統運行工況。控制柜留有輸出接口,便于遠程監測。
2)控制閥
控制閥是用來開閉或切換氣路的閥門。電控脈沖儀使用的是電磁閥,電磁閥是電控脈沖布袋除塵器噴吹系統的控制閥。
脈沖閥和電磁閥連用,作為脈沖控制器的執行機構,實現脈沖清灰,使濾袋“再生”,恢復過濾性能。
3)噴吹管
所生產的噴吹管平均了每個噴嘴的壓力,增加了除塵的清灰效果,保證了濾袋收到的清灰壓力相近,增加的布袋的使用時間。
0 條評論